室内设计服务流程
1. 初步沟通
与设计师初次洽谈,提出设计需求,点这里填写【装修需求表】
需准备:
- 户型平面图:售楼时的图册(带尺寸)
- 关键设计需求:如需要做几房,喜欢的风格
2.初步平面方案 (3 - 7 日)
汇报初步平面布置方案,以及用于确定方向的意向参考图。
阶段成果:
- 初步平面布置方案
- 意向图
3. 确定委托
确定委托,支付定金 10% 设计费,预约上门实地测量,沟通详细设计需求。
需完成:
- 详细需求清单
- 上门量房
4. 平面规划(7 - 14日)
汇报沟通平面方案、空间风格等细节,确定平面布局。签订设计合同(支付 30% 设计费)。
阶段成果:
- 详细平面方案,重点部位平面放大(参考意向)
5. 整体方案(7 - 14 日)
按照确定的平面布局和设计风格进行细部设计,绘制效果图。根据业主反馈修改调整并定稿。(支付 30% 设计费)
阶段成果:
- 确定平面布局
- 重点空间效果图(含全景效果图)
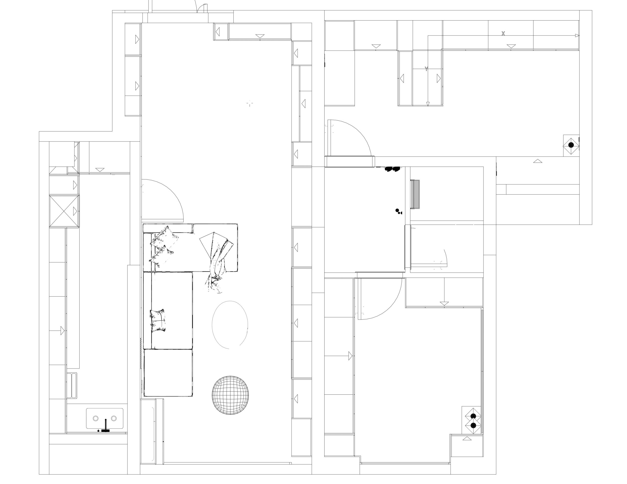
6.施工图(14 - 21日)
全套施工图纸绘制,并进行现场施工交底。(支付 30% 设计费)
阶段成果:
- 全套施工图纸,含原始平面图、拆除图、新建图、墙体定位图、平面布置图、地面铺装图、天花平面图、灯具平面图、开关控制图、插座布置图、立面索引图、立面图、大样图……
- 装修造价估算表(用于参考比价)
- 现场与施工方对接交底
7.协助选择施工团队
可以协助业主选择装修团队,审核报价单、工程做法、用材等
8.施工阶段
开工前,进行技术交底与图纸答疑。
配合现场进行各阶段验收,及下一阶段的工作难点答疑。
9.主材(软装)选购
配合业主进行主材选购(定颜色及材质),配合业主采买软装家具等。













_页面_01-com-1024x724.jpg)
_页面_02-com-1024x724.jpg)
_页面_03-com-1024x724.jpg)
_页面_04-com-1024x724.jpg)
_页面_05-com-1024x724.jpg)
_页面_06-com-1024x724.jpg)
_页面_07-com-1024x724.jpg)
_页面_08-com-1024x724.jpg)
_页面_09-com-1024x724.jpg)
_页面_10-com-1024x724.jpg)
_页面_11-com-1024x724.jpg)